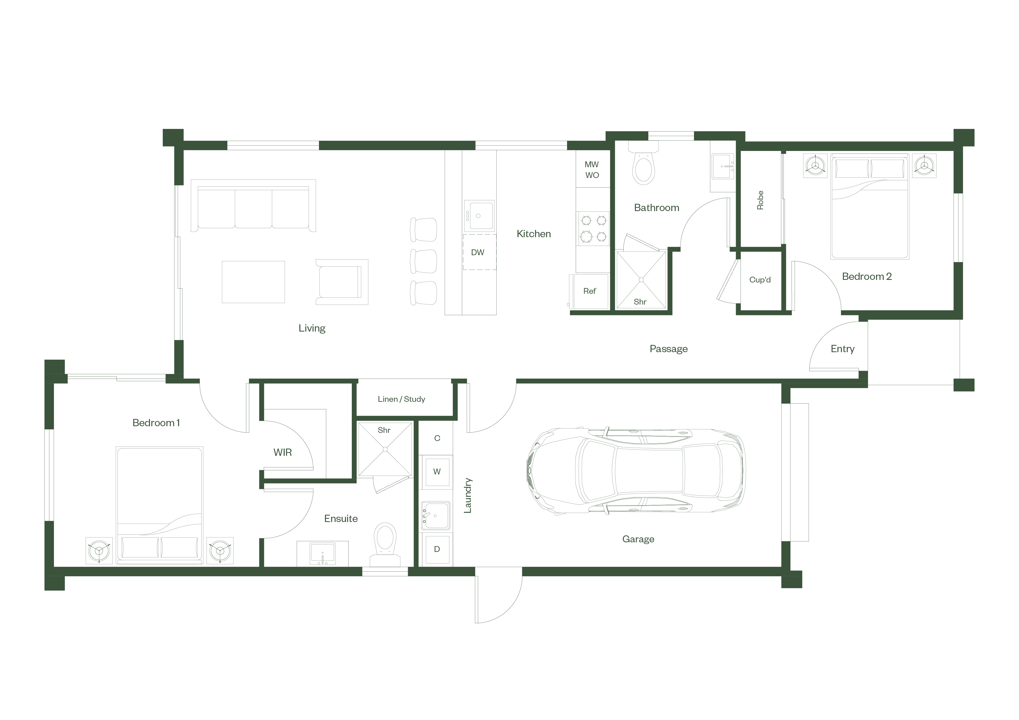
Relax and enjoy the ultimate living experience in a peaceful, private haven. The light-filled, open-plan kitchen and living area, featuring a striking racking ceiling, creates a welcoming atmosphere. With plenty of natural light, this space is perfect for entertaining or simply enjoying your daily life. The single garage offers secure parking and includes a practical laundry area, making household chores a breeze. Additionally, it features an EV charging station and solar panels, combining convenience with energy efficiency, so you can relax and enjoy your home.

EV car charger for future-ready living

Solar panels + hot water for energy efficiency

Vertical Abodo cladding with natural warmth

Raking ceilings for light and space
This plan is the perfect lock-and-leave home, designed for couples who love to travel and explore. With maintenance and security taken care of, you’re free to spend more time doing what you love.

